中古マンション

クリオ福住ガーデンマークス

3,080万円

所在地
北海道 札幌市 豊平区 月寒 東一条15丁目 12-20 [Google Map→]
交通
札幌市東豊線「福住」駅 徒歩7分
福住バスターミナルまで徒歩8分
間取り
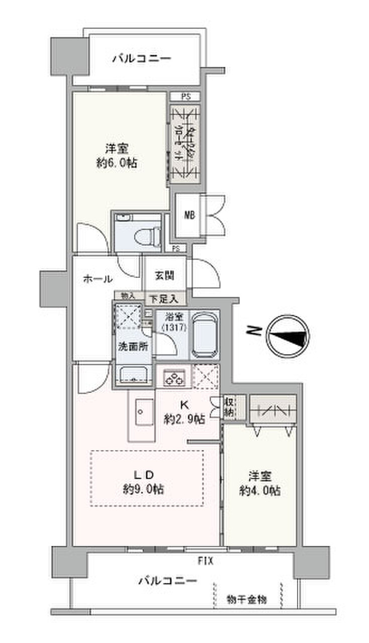
2LDK+WIC
専有面積
53.78㎡
所在階数
6階(11階建て)
築年月
2020年02月
  • 2020年2月築!地下鉄東豊線「福住」駅徒歩7分、閑静な住宅街に佇む洗練された外観のマンションです♪
  • 2LDK+ウォークインクローゼット!リビングは西向きで明るく暖かな日差しが入り込みます。
  • 青いアクセントクロスが落ち着いた雰囲気を印象付けてくれます。カーテンをしていても明るいのが分かります。
  • 西向きの大きな窓からは暖かな陽射しが入り込み室内を明るく照らします。太陽光が入るので冬も暖かいです。
  • 約11.9帖のリビングダイニングキッチンです。隣接する約4帖の洋室をつなげると約15.9帖の広さになります。
  • L字型のキッチンです。奥のスペースにはパントリーも完備されています。人造大理石のワークトップは熱や錆にも強いです。
  • 先端に浄水器を内蔵し、フレキシブルホースでシンク廻りも掃除がしやすい蛇口一体型の浄水器です。
  • 火を使わないIHクッキングヒーターです。ガラスプレートのガスコンロに変更も可能です(有償)
  • 後片付けの手間を減らす食器洗い乾燥機も完備されています。
  • 吊戸棚式の上部物入には消耗品や備品などを収納できます。タンクレスのトイレには手洗いカウンターなどお掃除しやすい機能も搭載。
  • 簡単操作でお湯張りや追い炊きが可能なフルオートバス。浴室内の湿気を除去し、冬も快適な浴室乾燥機付き。
  • 断熱層により足裏がひんやりするのを抑制するキレイサーモフロアを採用。洗面所と浴室の段差がないバリアフリーです。
  • 3面ミラーの裏側も収納スペースとして確保。シンクの下にも収納があり小物や常備品の収納も可能です。
  • 掃除のしやすいスクエアボウル一体型のカウンターとスリムでコンパクトな吐水口引出し式の水栓カランです。
  • 洗濯機置き場の横にはタオル等を収納できるリネン庫も完備されています。
  • トールサイズの下駄箱完備。中は可動式の棚になっていますので、靴のサイズに合わせて収納が可能です。
  • 西側リビング側のバルコニーです。人工芝の緑も綺麗です。景色と陽射しを遮らない透明のパネルを使用しています。
  • 西側リビング側のバルコニーでです。物干しもありますので、夏場はお布団や洗濯物を干すこともできます。
  • 西側リビング側バルコニーからの眺望。左手には大和ハウスプレミストドーム、奥には山並みも見えます。
  • 西側リビング側バルコニーからの北向きの眺望。目の前に高い建物もなく遮るものがありません。
  • エントランスをはじめ、1階の共用部には18台の防犯カメラが設置されています(エレベーター内2基含む)
  • エントランス内には管理事務室があり、こちらの自動ドアはオートロックのドアになっています
  • 格調高い石調タイルと木目のコントラストが高級感を演出。エントランスポートと一直線で結ぶことで奥行のある空間に
  • 1階共用部分には集合郵便受、ペットサニタリー、宅配BOXが完備されています。
  • 植栽で彩られたエントランスポーチはロードヒーティング敷設で冬も安心です
  • 敷地内は歩行者と車のアプローチを分けた歩車分離式の屋外駐車場です。(現在駐車場に空きはございません)
  • 屋根付きのラック式自転車置き場(月額使用料は無償です)

  • 2020年2月築!地下鉄東豊線「福住」駅徒歩7分、閑静な住宅街に佇む洗練された外観のマンションです♪

  • 2LDK+ウォークインクローゼット!リビングは西向きで明るく暖かな日差しが入り込みます。

  • 青いアクセントクロスが落ち着いた雰囲気を印象付けてくれます。カーテンをしていても明るいのが分かります。

  • 西向きの大きな窓からは暖かな陽射しが入り込み室内を明るく照らします。太陽光が入るので冬も暖かいです。

  • 約11.9帖のリビングダイニングキッチンです。隣接する約4帖の洋室をつなげると約15.9帖の広さになります。

  • L字型のキッチンです。奥のスペースにはパントリーも完備されています。人造大理石のワークトップは熱や錆にも強いです。

  • 先端に浄水器を内蔵し、フレキシブルホースでシンク廻りも掃除がしやすい蛇口一体型の浄水器です。

  • 火を使わないIHクッキングヒーターです。ガラスプレートのガスコンロに変更も可能です(有償)

  • 後片付けの手間を減らす食器洗い乾燥機も完備されています。

  • 吊戸棚式の上部物入には消耗品や備品などを収納できます。タンクレスのトイレには手洗いカウンターなどお掃除しやすい機能も搭載。

  • 簡単操作でお湯張りや追い炊きが可能なフルオートバス。浴室内の湿気を除去し、冬も快適な浴室乾燥機付き。

  • 断熱層により足裏がひんやりするのを抑制するキレイサーモフロアを採用。洗面所と浴室の段差がないバリアフリーです。

  • 3面ミラーの裏側も収納スペースとして確保。シンクの下にも収納があり小物や常備品の収納も可能です。

  • 掃除のしやすいスクエアボウル一体型のカウンターとスリムでコンパクトな吐水口引出し式の水栓カランです。

  • 洗濯機置き場の横にはタオル等を収納できるリネン庫も完備されています。

  • トールサイズの下駄箱完備。中は可動式の棚になっていますので、靴のサイズに合わせて収納が可能です。

  • 西側リビング側のバルコニーです。人工芝の緑も綺麗です。景色と陽射しを遮らない透明のパネルを使用しています。

  • 西側リビング側のバルコニーでです。物干しもありますので、夏場はお布団や洗濯物を干すこともできます。

  • 西側リビング側バルコニーからの眺望。左手には大和ハウスプレミストドーム、奥には山並みも見えます。

  • 西側リビング側バルコニーからの北向きの眺望。目の前に高い建物もなく遮るものがありません。

  • エントランスをはじめ、1階の共用部には18台の防犯カメラが設置されています(エレベーター内2基含む)

  • エントランス内には管理事務室があり、こちらの自動ドアはオートロックのドアになっています

  • 格調高い石調タイルと木目のコントラストが高級感を演出。エントランスポートと一直線で結ぶことで奥行のある空間に

  • 1階共用部分には集合郵便受、ペットサニタリー、宅配BOXが完備されています。

  • 植栽で彩られたエントランスポーチはロードヒーティング敷設で冬も安心です

  • 敷地内は歩行者と車のアプローチを分けた歩車分離式の屋外駐車場です。(現在駐車場に空きはございません)

  • 屋根付きのラック式自転車置き場(月額使用料は無償です)

特徴

物件特徴

  • 可動間仕切り
  • エレベータ
  • ペット可(管理規約の制限あり)
  • 宅配ボックス
  • 24時間ゴミ出し可
  • 小学校徒歩10分以内
  • コンビニ徒歩5分以内
  • スーパー徒歩10分以内
  • 始発駅

収納

  • ウォークインクローゼット

セキュリティ

  • TVドアホン
  • オートロック

設備

  • 床暖房
  • 食器洗乾燥機
  • IHクッキングヒータ
  • インターネット対応

担当者からのおすすめPOINT

札幌店

定休日 毎週火・水曜日

安藤 雪絵 (アンドウ ユキエ)

・2LDK+WIC!西向きで暖かな日差しが入り込む明るいリビングです。

・2020年2月築!地下鉄東豊線「福住」駅徒歩7分、閑静な住宅街に佇む洗練された外観のマンションです♪
・シーナシーナには食のテーマパーク ロピア福住店もあり日常の買い物にも便利です。
・収納豊富☆主寝室には大型ウォークインクローゼット、キッチンにはパントリー、洋室にも押入サイズの収納があります。
・大切なペットと一緒に生活できます!(ペット飼育規約による制限あり)
・インターネットは全住戸に標準装備されています。
・敷地内は歩行者と車のアプローチを分けたプランニングのため全世代が安心して生活できます。

※詳細はお気軽に担当者までお問合せください。

こちらの物件に関する お問い合わせ

物件概要

クリオ福住ガーデンマークス

3,080万円

所在地

北海道 札幌市 豊平区 月寒 東一条15丁目 12-20

交通 札幌市東豊線「福住」駅 徒歩7分
福住バスターミナルまで徒歩8分
専有面積 53.78㎡ バルコニー面積 15.65㎡ 間取り 2LDK+WIC
管理費 7740円/月 修繕積立金 10760円/月 駐車場 空無
構造 RC 所在階/階数 6階/11階建て 主要採光面 西
総戸数 43戸 建築年月 2020年02月 土地権利 所有権
用途地域 第一種住居地域
管理形態及び
管理員の勤務形態
全部委託 (通勤方式) 管理会社 明和地所コミュニティ株式会社
施工会社 萩原建設工業株式会社 分譲会社 明和地所株式会社 現況 居住中
引渡し可能年月(入居予定年月) 相談
取引態様 専任 物件番号 S260411
情報更新日 2026年05月25日 次回更新予定日 2026年06月08日
備考 駐車場料金:月額7000円~13000円(現在空きなし)

本掲載情報と現況に差異がある場合、現況を優先します。掲載物件は、掲載中に売却済、売出中止あるいは価格変更となる場合があります。(オープンルーム対象物件に関しては、開催中止や延期となる場合があります。)掲載写真やパース(絵)、または間取り図に描かれている家具や車などは、価格に含まれておりません。また眺望は将来に渡って保証するものではありません。あらかじめご了承ください。周辺施設や周辺環境の写真は過去に撮影したものをそのまま利用している場合があり、名称・外観・背景等、実際のものとは異なる場合がございます。仲介物件には所定の仲介手数料(消費税相当額を含みます)が必要です。

※月額予定賃料収入は、満室時における1ヶ月予定賃料収入です。(共益費等を含む)

※「予定利回り」は、公租公課・共益費・その他当該物件を維持するために必要な費用の控除前のものです。

※当社は月額予定賃料収入が確実に得られることを保証するものではありません。詳細は担当者へお問い合わせください。
明和地所株式会社〈国土交通大臣(9)第4118号〉〒150-8555 東京都渋谷区神泉町9-6 明和地所渋谷神泉ビル
(一社)不動産流通経営協会(FRK)会員、(一社)不動産協会会員、(公社)首都圏不動産公正取引協議会加盟


近隣エリアの物件

最近見た物件

アイコンについて

  • NEW!

    7日以内に登録があった物件

  • 価格変更

    価格更新があった物件

  • tukurite
    (リノベーション済)

    明和地所のリノベーション物件

  • 設備15年保証

    15年間の住宅設備保証が付いている物件

  • 仲介手数料不要

    仲介手数料が不要の物件

  • 住宅設備保証承継物件

    新築分譲時の設備保証を引き継げる物件

  • リフォーム済み

    リフォーム済みの物件

  • 新築

    新築物件