中古戸建

豊平区豊平7条10丁目 戸建

6,500万円

所在地
北海道 札幌市 豊平区 豊平 七条10丁目 [Google Map→]
交通
札幌市東豊線「豊平公園」駅 徒歩4分
札幌市東豊線「学園前」駅 徒歩7分
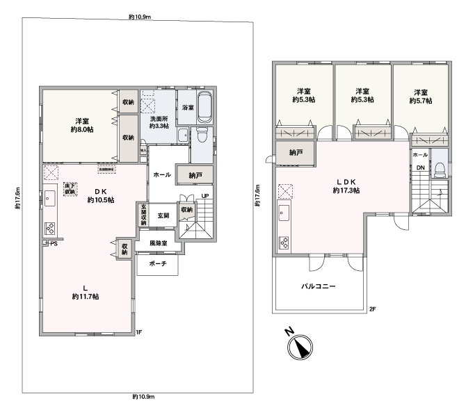
間取り
4SLDK+LDK
築年月
2007年06月
建物面積
152.28㎡
土地面積
192㎡
  • 前面道路並びにローソンやきたえーる、地下鉄駅入り口がある立地です!
  • 2007年築の平屋建のお家を簡易二世帯仕様住宅として2017年に増築しました
  • 南西向きの明るい1階リビングです
  • 1階のダイニングキッチンです、リビングつながりで開放感のあるスペースとなっております
  • 窓付きの明るい一坪浴室です
  • ボイラーと洗濯機スペースです、天井には便利な電動物干しが設置されています
  • 2階の明るいLDKです
  • 2階の明るいLDKです
  • 2階には南西向きのバルコニーがあります
  • 2階のキッチンはあまり使用感がなく、きれいです
  • 2階の洋室です
  • 車は2~3台駐車可能です(車種による)
  • メディカルクリニックなどがあります
  • ドラッグストアや100円ショップなども入っています

  • 前面道路並びにローソンやきたえーる、地下鉄駅入り口がある立地です!

  • 2007年築の平屋建のお家を簡易二世帯仕様住宅として2017年に増築しました

  • 南西向きの明るい1階リビングです

  • 1階のダイニングキッチンです、リビングつながりで開放感のあるスペースとなっております

  • 窓付きの明るい一坪浴室です

  • ボイラーと洗濯機スペースです、天井には便利な電動物干しが設置されています

  • 2階の明るいLDKです

  • 2階の明るいLDKです

  • 2階には南西向きのバルコニーがあります

  • 2階のキッチンはあまり使用感がなく、きれいです

  • 2階の洋室です

  • 車は2~3台駐車可能です(車種による)

  • メディカルクリニックなどがあります

  • ドラッグストアや100円ショップなども入っています

特徴

物件特徴

  • 南向き(南東・南西含む)
  • コンビニ徒歩5分以内
  • スーパー徒歩10分以内
  • 駅から徒歩5分以内
  • 前道6m以上

収納

  • 納戸

設備

  • トイレ2ヶ所
  • 駐車2台可

担当者からのおすすめPOINT

札幌店

定休日 毎週火・水曜日

太田 隆史 (オオタ タカシ)

・地下鉄東豊線「豊平公園」駅まで徒歩4分!
・徒歩5分圏内にスーパー、コンビニ、ホームセンターなどが揃う立地です!

・2007年築の平屋建のお家を簡易二世帯仕様住宅として2017年に増築しました
・南西向き、前面道路幅員約15mで利便性の良い立地でありながら陽当たりも良好です!
・2階には南西向きのバルコニーがあります
・北海きたえーるのイベントへも徒歩で向かうことができます
・車は2~3台駐車可能です(車種による)

こちらの物件に関する お問い合わせ

物件概要

豊平区豊平7条10丁目 戸建

6,500万円

所在地

北海道 札幌市 豊平区 豊平 七条10丁目

交通 札幌市東豊線「豊平公園」駅 徒歩4分
札幌市東豊線「学園前」駅 徒歩7分
土地面積 192㎡ 建物面積 152.28㎡ 間取り 4SLDK+LDK
構造 木造 階数 2階建て 主要採光面 南西
建築年月 2007年06月 接道 一方
南西側15m公道 
私道負担
土地権利 所有権 建ぺい率 80% 容積率 300%
用途地域 近隣商業地域
地目 雑種地 現況 居住中
引渡し可能年月(入居予定年月) 相談
取引態様 専任 物件番号 S260418
情報更新日 2026年04月27日 次回更新予定日 2026年05月11日
備考 ※駐車可能台数:2~3台(車種による)
※記載の建物面積は増築登記予定の面積です。現況の建物登記は増築前の平家建(61.07㎡)の登記となっております。売主の責任と費用負担にて増築登記後にお引渡しいたします。増築登記時は確認済証、検査済証取得済みです。
確認済・検査済証交付者:ビューローベリタスジャパン㈱
確認済証番号:第BVJ-SPR17-11-0833 交付年月日:平成29年12月11日
検査済証番号:第BVJ-SPR17-39-0833 交付年月日:平成29年12月20日

本掲載情報と現況に差異がある場合、現況を優先します。掲載物件は、掲載中に売却済、売出中止あるいは価格変更となる場合があります。(オープンルーム対象物件に関しては、開催中止や延期となる場合があります。)掲載写真やパース(絵)、または間取り図に描かれている家具や車などは、価格に含まれておりません。また眺望は将来に渡って保証するものではありません。あらかじめご了承ください。周辺施設や周辺環境の写真は過去に撮影したものをそのまま利用している場合があり、名称・外観・背景等、実際のものとは異なる場合がございます。仲介物件には所定の仲介手数料(消費税相当額を含みます)が必要です。

※月額予定賃料収入は、満室時における1ヶ月予定賃料収入です。(共益費等を含む)

※「予定利回り」は、公租公課・共益費・その他当該物件を維持するために必要な費用の控除前のものです。

※当社は月額予定賃料収入が確実に得られることを保証するものではありません。詳細は担当者へお問い合わせください。
明和地所株式会社〈国土交通大臣(9)第4118号〉〒150-8555 東京都渋谷区神泉町9-6 明和地所渋谷神泉ビル
(一社)不動産流通経営協会(FRK)会員、(一社)不動産協会会員、(公社)首都圏不動産公正取引協議会加盟


近隣エリアの物件

最近見た物件

アイコンについて

  • NEW!

    7日以内に登録があった物件

  • 価格変更

    価格更新があった物件

  • tukurite
    (リノベーション済)

    明和地所のリノベーション物件

  • 設備15年保証

    15年間の住宅設備保証が付いている物件

  • 仲介手数料不要

    仲介手数料が不要の物件

  • 住宅設備保証承継物件

    新築分譲時の設備保証を引き継げる物件

  • リフォーム済み

    リフォーム済みの物件

  • 新築

    新築物件