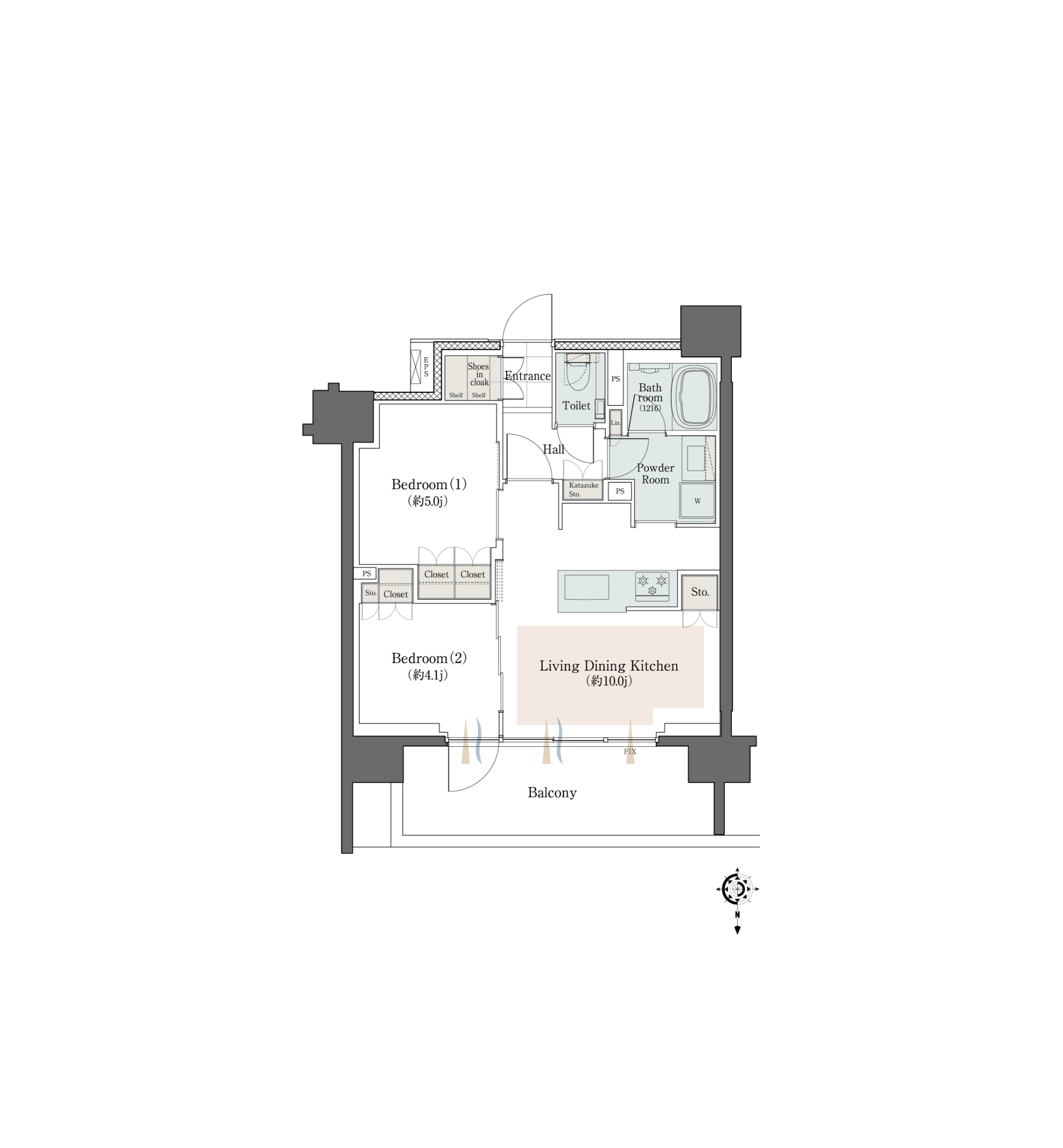
Atype
2LDK+SIC
専有面積46.14㎡
バルコニー面積10.33㎡
SIC:シューズインクローク
-
参考写真
大型の荷物も収納可能な
シューズインクローク -
参考写真
洋室(2)のスライディングドアを開放すると約14.1畳のリビングに
-
参考写真
会話が弾む対面キッチン
※掲載の眺望外観予想図は現地11階相当からの眺望写真(2026年2⽉撮影)に設計段階の図⾯を基に描き起こした外観完成予想図をCG合成したもので、形状・⾊等は実際とは異なる場合があります。形状の細部、設備機器等は表現していません。表現されている植栽は設計段階のものであり、変更になる場合があります。また葉の⾊合いや枝ぶりや樹形は想定であり、竣⼯から⽣育期間を経た状態のものを描いています。また特定の季節状態を表すものではありません。敷地周辺の建物などについては建物の位置、⾼さ等については実際のものと異なる場合があります。眺望については将来に渡って保証するものではありません。予めご了承ください。
※掲載の間取り図は設計段階の図面を基に描き起したもので、実際とは異なる場合がございます。
※掲載のバルコニー完成予想図(Cタイプ)は、設計段階の図⾯を基に描き起こしたものに現地11階相当の眺望写真(2025年10⽉撮影)を合成したもので、形状・⾊等は実際とは異なる場合があります。⼀部施⼯上変更する場合がございます。形状の細部、設備機器等は表現していません。また、家具・調度品・有償オプション等は販売価格に含まれません。バルコニーのご利⽤に関しては管理規約に記載の使⽤規則に従ってください。詳しくは係員にお問い合わせください。眺望については将来に渡って保証するものではありません。予めご了承ください。
PICK UP



