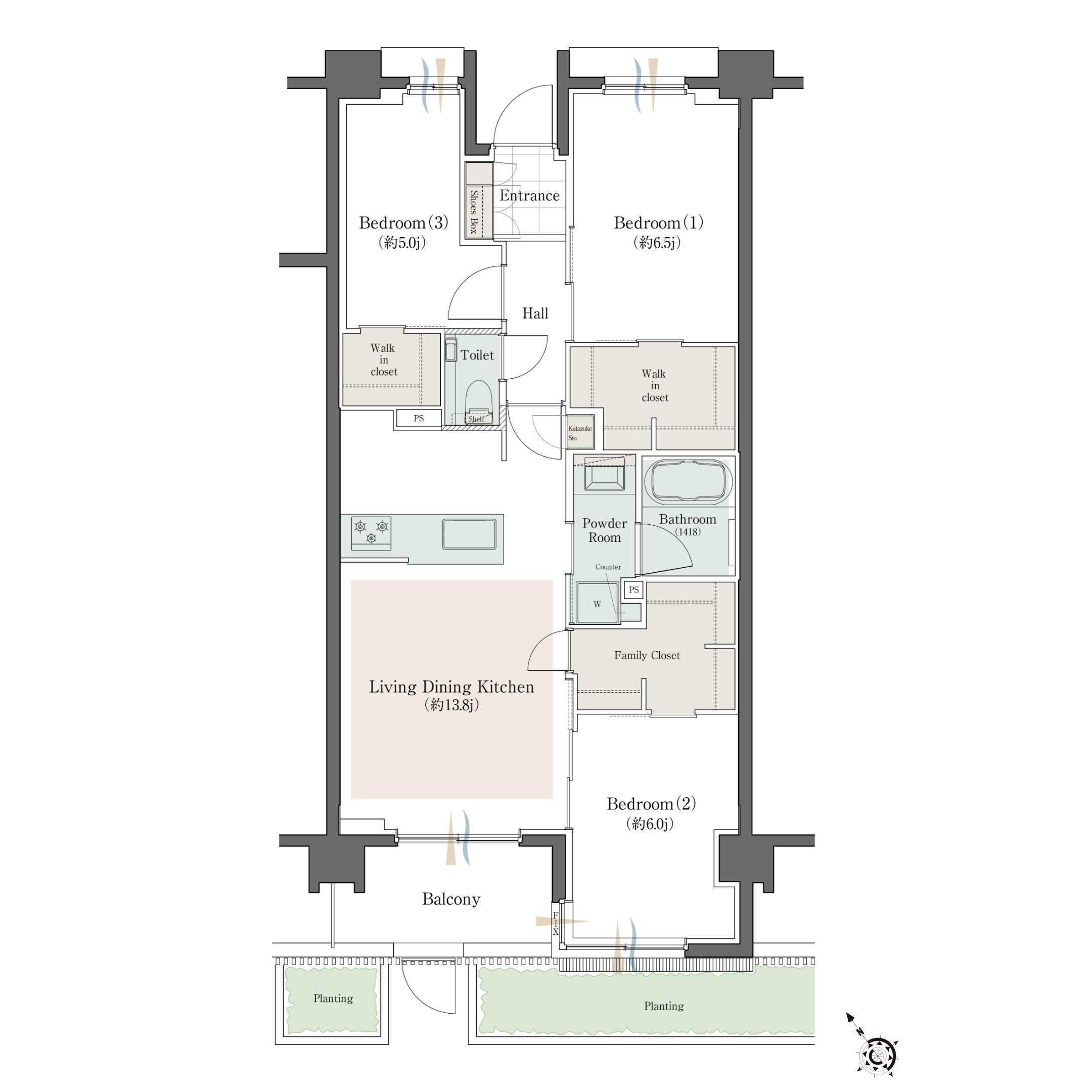
収納豊富なプラン
PTYPE
3LDK
+FC+2WIC
- 専有面積73.59m2
- バルコニー面積5.61m2

FC:ファミリークローゼット WIC:ウォークインクローゼット
※掲載の図面は計画段階のもので
変更になる場合がございます。
-

参考写真
大容量の荷物が収まるファミリークローゼットを設置
-

image photo
洋室(2)のスライディングドアを開放すると
約19.8畳のリビングに -

参考写真
会話が弾む対面キッチン
こちらでは間取りPtypeをご紹介しております。
間取り


image photo
収納豊富なプラン
3LDK
+FC+2WIC

FC:ファミリークローゼット WIC:ウォークインクローゼット
※掲載の図面は計画段階のもので
変更になる場合がございます。

参考写真
大容量の荷物が収まるファミリークローゼットを設置

image photo
洋室(2)のスライディングドアを開放すると
約19.8畳のリビングに

参考写真
会話が弾む対面キッチン
2駅3路線
利用可能
東京メトロ有楽町・副都心線
「地下鉄成増」駅 徒歩4分
東武東上線
「成増」駅 徒歩6分
一年中快適で省エネを
実現する住まい
ZEH-M Oriented 認定
ルーフバルコニーやハナレ付き
プレミアムプランなど
63m2超〜117m2超の
プランニング
PICK UP