中古マンション

ライオンズマンション北27条

2,198万円

所在地
北海道 札幌市 北区 北二十七条西5丁目 [Google Map→]
交通
札幌市南北線「北34条」駅 徒歩7分
札幌市南北線「北24条」駅 徒歩8分
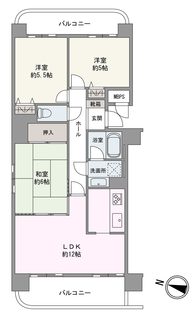
間取り
3LDK
専有面積
66.02㎡
所在階数
3階(10階建て)
築年月
1990年01月
  • 札幌市営地下鉄南北線「北34条」駅徒歩7分、「北24条」駅徒歩8分。2026年2月内装リフォーム完了。
  • 3LDK、価格2398万円、専有面積66.02㎡、バルコニー面積13.98㎡、西と東の2面バルコニーにつき、通風良好です。
  • シンプルな内装の為、様々な家具と調和し、お好みのお部屋づくりが楽しめます。フローリング仕様で日々のお手入れがスムーズです。
  • 約6畳の和室です。リビングと面しており、襖を取り外すことで、リビング一体で使用することができます。
  • 約6畳の和室です。広々とした収納がついており、荷物の多い方にもおすすめです。
  • キッチンは壁に囲われており、リビングへのにおいが漏れにくくなっています。お料理のにおいがカーテン等につく恐れが少ないです。
  • 約5.5帖の洋室です。東側のバルコニーに面しており、明るい朝日が差し込みます。
  • 約5帖の洋室です。東側バルコニーへと出ることができます。
  • 浴室収納棚は高さもあり、家族それぞれのシャンプーなどを配置することができます。
  • 身支度に便利な3面鏡付きの洗面化粧台です。鏡の裏とボウル下には収納スペースが設けられ、化粧品やリネン類、ドライヤー類等も収納できます。
  • 温水洗浄便座付きのトイレです。年間を通して、快適に使うことができます。
  • 住戸西側からの眺望です。
  • 住戸西側のバルコニーです。
  • 住戸東側からの眺望です。
  • 住戸東側のバルコニーです
  • 緑あふれるエントランスが毎日を彩ってくれます。
  • 平面自走式の駐車場です。屋根付きのため、雨や雪で車が汚れる心配が少ないです。
  • 駐輪場です。室内の為自転車が使えない冬場でも、安心して保管することが可能です。

  • 札幌市営地下鉄南北線「北34条」駅徒歩7分、「北24条」駅徒歩8分。2026年2月内装リフォーム完了。

  • 3LDK、価格2398万円、専有面積66.02㎡、バルコニー面積13.98㎡、西と東の2面バルコニーにつき、通風良好です。

  • シンプルな内装の為、様々な家具と調和し、お好みのお部屋づくりが楽しめます。フローリング仕様で日々のお手入れがスムーズです。

  • 約6畳の和室です。リビングと面しており、襖を取り外すことで、リビング一体で使用することができます。

  • 約6畳の和室です。広々とした収納がついており、荷物の多い方にもおすすめです。

  • キッチンは壁に囲われており、リビングへのにおいが漏れにくくなっています。お料理のにおいがカーテン等につく恐れが少ないです。

  • 約5.5帖の洋室です。東側のバルコニーに面しており、明るい朝日が差し込みます。

  • 約5帖の洋室です。東側バルコニーへと出ることができます。

  • 浴室収納棚は高さもあり、家族それぞれのシャンプーなどを配置することができます。

  • 身支度に便利な3面鏡付きの洗面化粧台です。鏡の裏とボウル下には収納スペースが設けられ、化粧品やリネン類、ドライヤー類等も収納できます。

  • 温水洗浄便座付きのトイレです。年間を通して、快適に使うことができます。

  • 住戸西側からの眺望です。

  • 住戸西側のバルコニーです。

  • 住戸東側からの眺望です。

  • 住戸東側のバルコニーです

  • 緑あふれるエントランスが毎日を彩ってくれます。

  • 平面自走式の駐車場です。屋根付きのため、雨や雪で車が汚れる心配が少ないです。

  • 駐輪場です。室内の為自転車が使えない冬場でも、安心して保管することが可能です。

特徴

物件特徴

  • エレベータ

担当者からのおすすめPOINT

札幌店

定休日 毎週火・水曜日

神田 貴一 (カンダ キイチ)

■3階角部屋の為、通風、採光良好です。
■地下鉄南北線「北34条」駅、「北24条」駅と2駅利用可能です。
■コンビニ、ドラッグストア、スーパーが徒歩圏にあり、お買い物に便利です。
■2026年2月リフォーム完了
新規交換:キッチン、洗面台、トイレ、畳
新規張替:クロス、フローリング

こちらの物件に関する お問い合わせ

物件概要

ライオンズマンション北27条

2,198万円

所在地

北海道 札幌市 北区 北二十七条西5丁目

交通 札幌市南北線「北34条」駅 徒歩7分
札幌市南北線「北24条」駅 徒歩8分
専有面積 66.02㎡ バルコニー面積 13.98㎡ 間取り 3LDK
管理費 10200円/月 修繕積立金 12730円/月 駐車場 空無
構造 SRC 所在階/階数 3階/10階建て 主要採光面 西
総戸数 34戸 建築年月 1990年01月 土地権利 所有権
用途地域 近隣商業地域
管理形態及び
管理員の勤務形態
全部委託 (通勤方式) 管理会社 株式会社大京アステージ
施工会社 砂子組 分譲会社 現況 空家
引渡し可能年月(入居予定年月) 相談
取引態様 仲介 物件番号 S260412
情報更新日 2026年04月13日 次回更新予定日 2026年04月27日

本掲載情報と現況に差異がある場合、現況を優先します。掲載物件は、掲載中に売却済、売出中止あるいは価格変更となる場合があります。(オープンルーム対象物件に関しては、開催中止や延期となる場合があります。)掲載写真やパース(絵)、または間取り図に描かれている家具や車などは、価格に含まれておりません。また眺望は将来に渡って保証するものではありません。あらかじめご了承ください。周辺施設や周辺環境の写真は過去に撮影したものをそのまま利用している場合があり、名称・外観・背景等、実際のものとは異なる場合がございます。仲介物件には所定の仲介手数料(消費税相当額を含みます)が必要です。

※月額予定賃料収入は、満室時における1ヶ月予定賃料収入です。(共益費等を含む)

※「予定利回り」は、公租公課・共益費・その他当該物件を維持するために必要な費用の控除前のものです。

※当社は月額予定賃料収入が確実に得られることを保証するものではありません。詳細は担当者へお問い合わせください。
明和地所株式会社〈国土交通大臣(9)第4118号〉〒150-8555 東京都渋谷区神泉町9-6 明和地所渋谷神泉ビル
(一社)不動産流通経営協会(FRK)会員、(一社)不動産協会会員、(公社)首都圏不動産公正取引協議会加盟


近隣エリアの物件

最近見た物件

アイコンについて

  • NEW!

    7日以内に登録があった物件

  • 価格変更

    価格更新があった物件

  • tukurite
    (リノベーション済)

    明和地所のリノベーション物件

  • 設備15年保証

    15年間の住宅設備保証が付いている物件

  • 仲介手数料不要

    仲介手数料が不要の物件

  • 住宅設備保証承継物件

    新築分譲時の設備保証を引き継げる物件

  • リフォーム済み

    リフォーム済みの物件

  • 新築

    新築物件