中古マンション

ヒルズ新百合ヶ丘

9,698万円

所在地
神奈川県 川崎市 麻生区 王禅寺 西1丁目 1-14 [Google Map→]
交通
小田急線「新百合ヶ丘」駅 徒歩11分
小田急多摩線「新百合ヶ丘」駅 徒歩11分
間取り
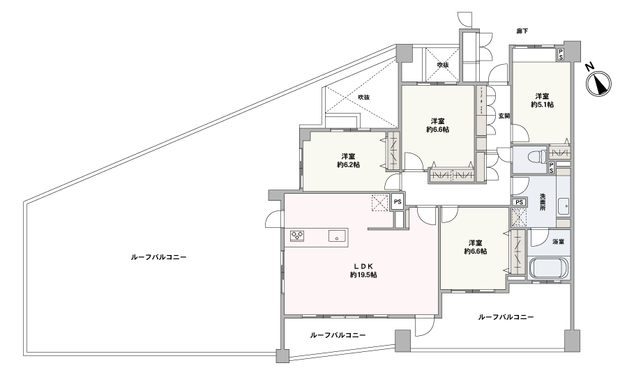
4LDKWIC
専有面積
100.93㎡
所在階数
5階(5階建て 地下1階)
築年月
2001年03月
  • 【ヒルズ新百合ヶ丘】小田急小田原線・小田急多摩線「新百合ヶ丘」駅まで徒歩11分です。鉄筋コンクリート造地上5階地下1階建ての5階に位置しています。
  • LDKからルーフバルコニーへ出入り可能。玄関・廊下・各洋室に収納が備わり、整理整頓しやすそうです。キッチンは家族のコミュニケーションが捗る対面式です。
  • 【LDK】北西・南西側から明るい光が差し込むLDK。外からの視線を気にせずのびのびお過ごしいただけます。2026年2月内装リフォーム済み。
  • 【キッチン】2026年2月にシステムキッチンが新規交換されています。3口ガスコンロが備え付けられているため、複数品を同時に調理可能です。
  • 【洋室約6.6帖(北東側)】採光部分は腰高窓なので、家具の配置がしやすく、壁面を活かしたレイアウトが可能です。廊下より出入り可能な独立したお部屋です。
  • 【洋室約6.2帖】北西・北東側の2面採光で、明るく風通しの良いお部屋です。北西側のルーフバルコニーに面しています。
  • 【洋室約6.6帖(南西側)】クローゼット付きなので、部屋の中をスッキリと片付けられます。お好みのテイストにアレンジしやすいシンプルな内装です。
  • 【洋室約5.1帖】ベッドを置いて寝室にしたり、リモートワークスペースにしたり、使い方は自由自在です。
  • 【浴室】お子様とのご入浴もしやすい、ゆとりある1620サイズの浴室(2026年2月交換済み)。窓があり、ご入浴後や清掃時に換気ができます。
  • 【洗面室】ゆとりのある洗面室。洗面化粧台は2026年2月に交換済みです。横の収納スペースには洗面用品や化粧水などを仕舞えます。
  • 【トイレ】ホワイトを基調としたシンプルな内装です。上部には棚が設置されており、トイレットペーパーや掃除用具などをまとめて収納可能です。
  • 【ルーフバルコニー】ルーフバルコニーは、計94.72㎡の広々とした空間です。ティータイムや日光浴など、外部からの視線を気にせずプライベートタイムを堪能していただけます。
  • 【バルコニーからの眺望写真】最上階部分につき、眺望・通風ともに良好です。※眺望は将来に渡って保証するものではありません。
  • 【玄関】玄関には下部のスペースを活用できるフロートタイプのシューズボックスが設置されています。玄関周りをすっきりと保つことができ、ご家族やゲストを気持ち良く迎えることができそうです。
  • 【玄関ポーチ】玄関の外にはポーチが設けられています。外廊下から室内が見えにくい仕様で、プライバシーが守られます。0.71㎡の専用トランクルーム付きです。
  • 【エントランス】エントランスには、オートロックが採用されています。不審者や不要なセールスなどの侵入を防ぎ、防犯面に配慮できます。
  • 【エントランス】総戸数37戸のマンション。管理形態は日勤です。お引き渡し時期など、ご不明な点がございましたら、お気軽にご相談ください。
  • 【ロビー】重厚感のあるロビー。ソファが置いてあるので、ご家族との待ち合わせや住民同士のおしゃべりが弾みます。
  • 【宅配ボックス】外出中も荷物を受け取れる宅配BOXが備わっています。配達時間を気にせず外出を楽しめます。
  • 【駐輪場・バイク置き場】屋内型ですので、雨風の影響を受けにくく、防犯面にも配慮されています。サイクルラック付きです。
  • 【駐車場】マンション敷地内には駐車スペースが設けられています。最新の空き状況や、利用可能な車両サイズなど、お気兼ねなくご確認くださいませ。
  • 【駐車場】マンション敷地内には駐車スペースが設けられています。最新の空き状況や、利用可能な車両サイズなど、お気兼ねなくご確認くださいませ。

  • 【ヒルズ新百合ヶ丘】小田急小田原線・小田急多摩線「新百合ヶ丘」駅まで徒歩11分です。鉄筋コンクリート造地上5階地下1階建ての5階に位置しています。

  • LDKからルーフバルコニーへ出入り可能。玄関・廊下・各洋室に収納が備わり、整理整頓しやすそうです。キッチンは家族のコミュニケーションが捗る対面式です。

  • 【LDK】北西・南西側から明るい光が差し込むLDK。外からの視線を気にせずのびのびお過ごしいただけます。2026年2月内装リフォーム済み。

  • 【キッチン】2026年2月にシステムキッチンが新規交換されています。3口ガスコンロが備え付けられているため、複数品を同時に調理可能です。

  • 【洋室約6.6帖(北東側)】採光部分は腰高窓なので、家具の配置がしやすく、壁面を活かしたレイアウトが可能です。廊下より出入り可能な独立したお部屋です。

  • 【洋室約6.2帖】北西・北東側の2面採光で、明るく風通しの良いお部屋です。北西側のルーフバルコニーに面しています。

  • 【洋室約6.6帖(南西側)】クローゼット付きなので、部屋の中をスッキリと片付けられます。お好みのテイストにアレンジしやすいシンプルな内装です。

  • 【洋室約5.1帖】ベッドを置いて寝室にしたり、リモートワークスペースにしたり、使い方は自由自在です。

  • 【浴室】お子様とのご入浴もしやすい、ゆとりある1620サイズの浴室(2026年2月交換済み)。窓があり、ご入浴後や清掃時に換気ができます。

  • 【洗面室】ゆとりのある洗面室。洗面化粧台は2026年2月に交換済みです。横の収納スペースには洗面用品や化粧水などを仕舞えます。

  • 【トイレ】ホワイトを基調としたシンプルな内装です。上部には棚が設置されており、トイレットペーパーや掃除用具などをまとめて収納可能です。

  • 【ルーフバルコニー】ルーフバルコニーは、計94.72㎡の広々とした空間です。ティータイムや日光浴など、外部からの視線を気にせずプライベートタイムを堪能していただけます。

  • 【バルコニーからの眺望写真】最上階部分につき、眺望・通風ともに良好です。※眺望は将来に渡って保証するものではありません。

  • 【玄関】玄関には下部のスペースを活用できるフロートタイプのシューズボックスが設置されています。玄関周りをすっきりと保つことができ、ご家族やゲストを気持ち良く迎えることができそうです。

  • 【玄関ポーチ】玄関の外にはポーチが設けられています。外廊下から室内が見えにくい仕様で、プライバシーが守られます。0.71㎡の専用トランクルーム付きです。

  • 【エントランス】エントランスには、オートロックが採用されています。不審者や不要なセールスなどの侵入を防ぎ、防犯面に配慮できます。

  • 【エントランス】総戸数37戸のマンション。管理形態は日勤です。お引き渡し時期など、ご不明な点がございましたら、お気軽にご相談ください。

  • 【ロビー】重厚感のあるロビー。ソファが置いてあるので、ご家族との待ち合わせや住民同士のおしゃべりが弾みます。

  • 【宅配ボックス】外出中も荷物を受け取れる宅配BOXが備わっています。配達時間を気にせず外出を楽しめます。

  • 【駐輪場・バイク置き場】屋内型ですので、雨風の影響を受けにくく、防犯面にも配慮されています。サイクルラック付きです。

  • 【駐車場】マンション敷地内には駐車スペースが設けられています。最新の空き状況や、利用可能な車両サイズなど、お気兼ねなくご確認くださいませ。

  • 【駐車場】マンション敷地内には駐車スペースが設けられています。最新の空き状況や、利用可能な車両サイズなど、お気兼ねなくご確認くださいませ。

特徴

物件特徴

  • 南向き(南東・南西含む)
  • リフォーム済み
  • ルーフバルコニー
  • 角部屋
  • エレベータ
  • ペット可(管理規約の制限あり)
  • 宅配ボックス
  • 小学校徒歩10分以内
  • コンビニ徒歩5分以内
  • スーパー徒歩10分以内
  • 始発駅
  • 2沿線以上利用可

セキュリティ

  • オートロック

設備

  • 対面式キッチン
  • 食器洗乾燥機
  • 駐車場空きあり
  • トランクルーム

担当者からのおすすめPOINT

町田店

定休日 毎週火・水曜日

森田 智成 (モリタ トモナリ)

野村不動産(株)既分譲マンション◆広々ルーフバルコニー付き◆最上階角住戸
 
◇◆「ヒルズ新百合ヶ丘」のオススメPOINT◆◇

◆小田急小田原線・小田急多摩線「新百合ヶ丘」駅まで徒歩11分。
◆眺望良好。地上5階地下1階建ての最上階部分角住戸です。
◆専有面積100㎡超×ルーフバルコニー94㎡超。
◆LDK・洋室2部屋がルーフバルコニーに面しています。
◆家族と会話が弾む対面式キッチンが採用されています。
◆浴槽は1620サイズ。一日の疲れをゆったり癒すことができます。
◆2026年2月リフォーム済み
・新調:システムキッチン、ユニットバス、トイレ、洗面化粧台、建具
・張替:クロス全室、フローリング 他
◆小学校まで徒歩5分。お子様の通学負担が少なめの住環境です。

こちらの物件に関する お問い合わせ

物件概要

ヒルズ新百合ヶ丘

9,698万円

所在地

神奈川県 川崎市 麻生区 王禅寺 西1丁目 1-14

交通 小田急線「新百合ヶ丘」駅 徒歩11分
小田急多摩線「新百合ヶ丘」駅 徒歩11分
専有面積 100.93㎡ バルコニー面積 0.01㎡ 間取り 4LDKWIC
管理費 16400円/月 修繕積立金 27750円/月 駐車場 空有
構造 RC 所在階/階数 5階/5階建て 地下1階 主要採光面 南西
総戸数 37戸 建築年月 2001年03月 土地権利 所有権
用途地域 第一種中高層住居専用地域
管理形態及び
管理員の勤務形態
全部委託 (通勤方式) 管理会社 野村不動産パートナーズ株式会社
施工会社 鉄建建設 分譲会社 野村不動産株式会社 現況 空家
引渡し可能年月(入居予定年月) 相談
取引態様 仲介 物件番号 M260418-02
情報更新日 2026年04月18日 次回更新予定日 2026年05月02日
備考 ※図面と現況が異なる場合は現況を優先とします。※司法書士は指定 ※トランクルーム:0.71㎡ ポーチ:7.67㎡ ※ペット飼育可(体高30cm以内の犬・猫2頭まで) ※駐車場料金:月額14500~16500円 ※ルーフバルコニー使用料:月額2840円

本掲載情報と現況に差異がある場合、現況を優先します。掲載物件は、掲載中に売却済、売出中止あるいは価格変更となる場合があります。(オープンルーム対象物件に関しては、開催中止や延期となる場合があります。)掲載写真やパース(絵)、または間取り図に描かれている家具や車などは、価格に含まれておりません。また眺望は将来に渡って保証するものではありません。あらかじめご了承ください。周辺施設や周辺環境の写真は過去に撮影したものをそのまま利用している場合があり、名称・外観・背景等、実際のものとは異なる場合がございます。仲介物件には所定の仲介手数料(消費税相当額を含みます)が必要です。

※月額予定賃料収入は、満室時における1ヶ月予定賃料収入です。(共益費等を含む)

※「予定利回り」は、公租公課・共益費・その他当該物件を維持するために必要な費用の控除前のものです。

※当社は月額予定賃料収入が確実に得られることを保証するものではありません。詳細は担当者へお問い合わせください。
明和地所株式会社〈国土交通大臣(9)第4118号〉〒150-8555 東京都渋谷区神泉町9-6 明和地所渋谷神泉ビル
(一社)不動産流通経営協会(FRK)会員、(一社)不動産協会会員、(公社)首都圏不動産公正取引協議会加盟


近隣エリアの物件

最近見た物件

アイコンについて

  • NEW!

    7日以内に登録があった物件

  • 価格変更

    価格更新があった物件

  • tukurite
    (リノベーション済)

    明和地所のリノベーション物件

  • 設備15年保証

    15年間の住宅設備保証が付いている物件

  • 仲介手数料不要

    仲介手数料が不要の物件

  • 住宅設備保証承継物件

    新築分譲時の設備保証を引き継げる物件

  • リフォーム済み

    リフォーム済みの物件

  • 新築

    新築物件