中古マンション

ルピアグランデ浦和美園

5,280万円

所在地
埼玉県 さいたま市 岩槻区 美園東1丁目
交通
埼玉高速線「浦和美園」駅 徒歩9分
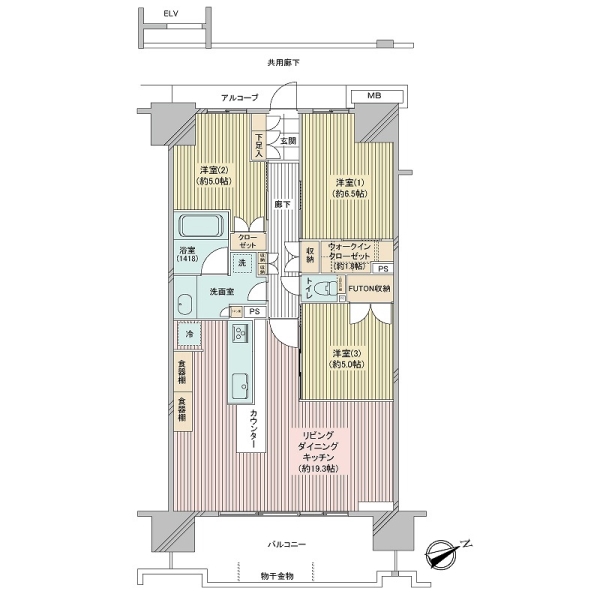
間取り
3LDK
専有面積
78.54㎡
所在階数
15階(15階建て)
築年月
2020年01月
  • ■2020年1月竣工
  • ■最上階・南東向きの明るいお部屋です
  • ■総戸数340戸のビッグコミュニティ
  • ■お客様を迎えるエントランスロビー
  • ■急な来客時にもご利用可能です
  • ■約19.3帖のLDK
  • ■使いやすい洗面台
  • ■トイレ
  • ■洋室
  • ■収納豊富な玄関
  • ■奥行2mのバルコニー
  • ■最上階ならではの眺望
  • ■床暖房の操作パネル
  • ■浴室換気乾燥機付き
  • ■宅配ボックス付き
  • ■浦和美園駅徒歩9分

  • ■2020年1月竣工

  • ■最上階・南東向きの明るいお部屋です

  • ■総戸数340戸のビッグコミュニティ

  • ■お客様を迎えるエントランスロビー

  • ■急な来客時にもご利用可能です

  • ■約19.3帖のLDK

  • ■使いやすい洗面台

  • ■トイレ

  • ■洋室

  • ■収納豊富な玄関

  • ■奥行2mのバルコニー

  • ■最上階ならではの眺望

  • ■床暖房の操作パネル

  • ■浴室換気乾燥機付き

  • ■宅配ボックス付き

  • ■浦和美園駅徒歩9分

特徴

物件特徴

  • 南向き(南東・南西含む)

こちらの物件に関する お問い合わせ

物件概要

ルピアグランデ浦和美園

5,280万円

所在地

埼玉県 さいたま市 岩槻区 美園東1丁目

交通 埼玉高速線「浦和美園」駅 徒歩9分
専有面積 78.54㎡ バルコニー面積 13.2㎡ 間取り 3LDK
管理費 13900円 修繕積立金 7070円 駐車場 空無
構造 RC 所在階/階数 15階/15階建て 主要採光面 南東
総戸数 建築年月 2020年01月 土地権利 所有権
用途地域 第二種住居地域
管理形態及び
管理員の勤務形態
全部委託 (通勤方式) 管理会社
施工会社 分譲会社 現況 居住中
引渡し可能年月(入居予定年月) 相談
取引態様 仲介 物件番号 UEC02-HRA62962
情報更新日 2026年04月29日 次回更新予定日 2026年05月13日
備考 日勤管理
ワイレモ、インターネット料、ルピアクラブ 1240円/月

本掲載情報と現況に差異がある場合、現況を優先します。掲載物件は、掲載中に売却済、売出中止あるいは価格変更となる場合があります。(オープンルーム対象物件に関しては、開催中止や延期となる場合があります。)掲載写真やパース(絵)、または間取り図に描かれている家具や車などは、価格に含まれておりません。また眺望は将来に渡って保証するものではありません。あらかじめご了承ください。周辺施設や周辺環境の写真は過去に撮影したものをそのまま利用している場合があり、名称・外観・背景等、実際のものとは異なる場合がございます。仲介物件には所定の仲介手数料(消費税相当額を含みます)が必要です。

※月額予定賃料収入は、満室時における1ヶ月予定賃料収入です。(共益費等を含む)

※「予定利回り」は、公租公課・共益費・その他当該物件を維持するために必要な費用の控除前のものです。

※当社は月額予定賃料収入が確実に得られることを保証するものではありません。詳細は担当者へお問い合わせください。
明和地所株式会社〈国土交通大臣(9)第4118号〉〒150-8555 東京都渋谷区神泉町9-6 明和地所渋谷神泉ビル
(一社)不動産流通経営協会(FRK)会員、(一社)不動産協会会員、(公社)首都圏不動産公正取引協議会加盟


近隣エリアの物件

最近見た物件

アイコンについて

  • NEW!

    7日以内に登録があった物件

  • 価格変更

    価格更新があった物件

  • tukurite
    (リノベーション済)

    明和地所のリノベーション物件

  • 設備15年保証

    15年間の住宅設備保証が付いている物件

  • 仲介手数料不要

    仲介手数料が不要の物件

  • 住宅設備保証承継物件

    新築分譲時の設備保証を引き継げる物件

  • リフォーム済み

    リフォーム済みの物件

  • 新築

    新築物件